Įdėti skelbimą

4 kambarių namas Bajorų k., Mėtų g. Vilniaus r.

220000 €
5

4 kambarių namas Bajorų k., Mėtų g.

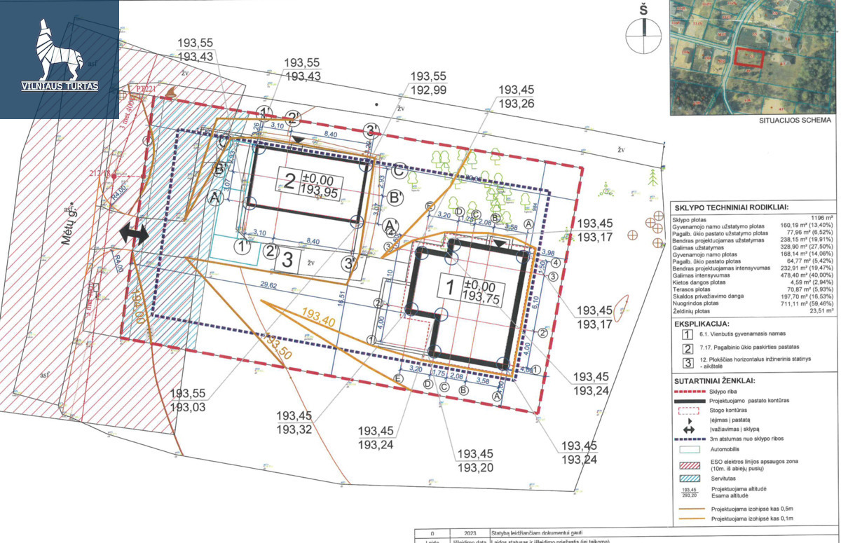
PARDUODAMAS 13 ARŲ SKLYPAS SU MODULINIU NAMU

Vieta – Vilniaus m., Mėtų g.

Asfaltuotas privažiavimas iki pat sklypo, aplinkui nauji namai, pastoviai gyvenantys kaimynai.

Sklype stovi modulinis namas 2023 m.

Sklypo bendras plotas – 13 arų:

11.96 arų – Vienbučių ir dvibučių gyvenamųjų pastatų teritorijos;

1.04 arai – Susisiekimo ir inžinerinių tinklų koridorių teritorijos.

Naudmenų našumo balais: 40.

Matavimų tipas: kadastriniai matavimai.

Elektra: yra.

Dujos: šalia sklypo.

Vanduo: gręžinys.

Kanalizacija: vietinė su BIO valymo įrenginiais.

Internetas: Telia šviesolaidis.

Sklype stovi modulinis namas, kuris registruotas kaip lauko virtuvė su terasa, bet galima užregistruoti kaip nama arba palikti kaip yra ir šalia pastatyti didesnį namą, yra projektas namui, kurio numatomas bendras plotas yra 168 kv.m.

ESAMAS NAMAS:

Miegamieji kambariai – 9.98 kv.m, 9.45 kv.m ir 8.86 kv.m;

Virtuvė su svetainė – 28.78 kv.m;

San.mazgas – 4.76 kv.m;

Katelinė – 3.62 kv.m;

Terasa – 35.25 kv.m.

Langai: 2-jų stiklų.

Namą įmanoma parduoti ir išvežti.

SUSISIEKIMAS:

Asfaltuotas privažiavimas iki pat sklypo.

Iki autobusų st. – 1.50 km (Mėtų st.);

Iki PC Rimi, PC Šilas – 1,50 km;

Iki Ukmergės plento – 2.60 km.

Iki Prekybos centro BIG (Pašilaičiai, Fabijoniškės) – 4 km.

Iki Vilniaus miesto centro – 10 km.

SKLYPO IR NAMO KAINA: 210000 EUR

Skambinkit, rašykit ir suteiksiu jums daugiau informacijos.

jolanta.petrauskaite@gmail.com

Plotas (m²): 65
Sklypo plotas (a): 13
Kambarių skaičius: 4
Aukštų skaičius: 1
Statybos metai: 2023

Žemėlapis yra išjungtas dėl privatumo nustatymų

Norėdami jį peržiūrėti – sutikite su marketingo slapukais

Susisiekti +370 677 44 431
Adresas: Vilniaus r. sav., Bajorų k., Mėtų g.
ID: 2678773   2026 02 27

Rekomenduojame

NaudotosKnygos.lt
parduodamas sodas sernuose issimoketinai keitimas
29999 €

parduodamas sodas sernuose issimoketinai keitimas

sode yra trys pastatai. pirmas muras 50m2 rusys20m2 plastikinei langai betono grindys vietnis vandentiekis nuotekos traidenis lietaus nuotekos vidus neirenktas. antras blokelei visiskai nauja statyba 30m2 plastikinei langai vandentiekis nuotekos traidenis lietaus nuotekos apsiltintas stogas. ukinis pastatas medinis 15m2 lentynos elektra. aplink soda medine tvora du atskiri ivazevimo vartai ir vartelei. stiklinis siltnamis18m2. vietinis vanduo […]


Parduodama sodyba netoli Kryžkalnio
35000 €

Parduodama sodyba netoli Kryžkalnio

Parduodama sodyba su žeme 4,6287 ha. Kelmės rajone, Gudelių kaime, 5 km iki Kryžkalnio. Su visais baldais. Yra įvestas vanduo, mūrinis garažas, lauko virtuvė ir rūsys. Sodyba parduodama kartu su žeme. Plotas (m²): 69 Sklypo plotas (a): 30 Kambarių skaičius: 3 Aukštų skaičius: 1 Statybos metai: 1975 Namo tipas: Rąstinis Šildymas: Kietas kuras


Kaminu ideklai. pristatomi kaminai

Kaminu ideklai. pristatomi kaminai

Greitai bei kokybiskai gaminame bei montuojame nerudyjancio plieno kaminu ideklus. pristatomus apsildomus dvisienius kaminus. suteikiama garantija


Parduodu sodybą

Parduodu sodybą

Parduodu sodybą,vienkiemis,graži sutvarkyta aplinka,yra didelė pobuvių salė,pirtis. Galima vystyti verslą. Plotas (m²): 400 Sklypo plotas (a): 200 Statybos metai: 2008 Namo tipas: Medinis Būklė: Įrengtas Šildymas: Centrinis


Didelė sodyba
70000 €

Didelė sodyba

Gražioje vietoje , 11 km. iki Vištyčio poilsiavietės ir ežero. Didelis sodas 8 ha žemės . tame tarpe 0,6 ha miško Per pačią sodybą teka upė Liepona . Plotas (m²): 80 Sklypo plotas (a): 8000 Kambarių skaičius: 3 Aukštų skaičius: 1 Statybos metai: 1939 Namo tipas: Medinis Būklė: Reikia remontuoti Šildymas: Kietas kuras


Sena sodyba

Sena sodyba

Yra sodas , prieina vandentiekis , kanalizacija 0,5 km už miesto ribų . prie pagrindinio kelio Žemės yra 2 ha . , tačiau galima pirkti pagal susitarimą Plotas (m²): 70 Sklypo plotas (a): 2000 Kambarių skaičius: 2 Aukštų skaičius: 1 Statybos metai: 1936 Namo tipas: Medinis Būklė: Reikia remontuoti Šildymas: Kietas kuras