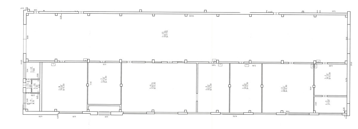
Patalpų nuoma Aukštadvario mstl., Trakų r.

1500 €
3

Patalpų nuoma Aukštadvario mstl.,

Nuomojamos gamybinės patalpos Aukštadvario centre.

KAINA 1500 eur

– Galima nuoma nuo liepos pradžios;

– Aukštos lubos (7,7 m), yra tiltinis kranas;

– Dideli aukšti įvažiavimo vartai;

– Aukstadvario centre.

Patalpoms priklauso apie 38 arų aptvertos aikštelės sklypo dydis.

———————————————————————————————————————-

Komercinio Nekilnojamojo Turto Brokeris:

Silvestr Pečuro

+370 68112077

silvestr@nampro.lt

Plotas (m²): 1053
Aukštas: 1
Aukštų skaičius: 1
1500 €
Susisiekti +370 681 12077
Adresas: Trakų r. sav., Aukštadvario mstl.,
ID: 2629618   2025 10 01

Rekomenduojame

NaudotosKnygos.lt
Nuomojamos erdvios sandėliavimo patalpos Antakalnyje – su rampa išsikrovimui ir liftu į
450 €

Nuomojamos erdvios sandėliavimo patalpos Antakalnyje – su rampa išsikrovimui ir liftu į

Nuomojamos erdvios sandėliavimo patalpos Antakalnyje – su rampa išsikrovimui ir liftu į patalpas. Taip pat priklauso nemokamos parkavimo vietos šalia patalpų! —-SKELBIMO APRAŠYME ESANTIS ID: 8136—- PATALPOS JAU LAISVOS BENDRA INFORAIJA Plotas: 130 m² Patalpų aukštis 3,02 m2 Patalpos pusrūsyje Paskirtis: Komercinė (prekyba, paslaugos, sandėliavimas, e. prekyba) Nuomos kaina: 650€ + mokesčiai NUOMOJAMŲ PATALPŲ YPATYBĖS […]


DU ĮĖJIMAI, VIENAS IŠ GATVĖS PUSĖS, GERAI MATOMAS, KITAS PER VIDINIAME KIEME ESANČIĄ
1600 €

DU ĮĖJIMAI, VIENAS IŠ GATVĖS PUSĖS, GERAI MATOMAS, KITAS PER VIDINIAME KIEME ESANČIĄ

DU ĮĖJIMAI, VIENAS IŠ GATVĖS PUSĖS, GERAI MATOMAS, KITAS PER VIDINIAME KIEME ESANČIĄ LAIPTINĘ. PAČIOJE SENAMIESČIO ŠIRDYJE, RŪDNINKŲ IR VISŲ ŠVENTŲJŲ GATVIŲ SANKIRTOJE, NUOMOJAMOS PATALPOS, SKIRTOS ĮVAIRIŲ PREKIŲ PARDAVIMO, OFISO, GROŽIO SALONO AR KITAI PAGEIDAUJAMAI VEIKLAI VYKDYTI. PATALPOS VILNIUJE Rūdninkų g., 1 aukštas iš 3, 64.88 kv.m., 1940 m. Mūrinis. Yra san. mazgas ir sandeliavimo […]


Nuomojamos gyvenamosios paskirties patalpos strategiškai patogioje vietoje, Vilniaus Senamiestyje.
1200 €

Nuomojamos gyvenamosios paskirties patalpos strategiškai patogioje vietoje, Vilniaus Senamiestyje.

Nuomojamos gyvenamosios paskirties patalpos strategiškai patogioje vietoje, Vilniaus Senamiestyje. —-SKELBIMO APRAŠYME ESANTIS ID: 7000—- Patalpų charakteristikos: • Bendras plotas: 80,99 kv. m. • Aukštas: 1 iš 2. Privalumai: • Įėjimas: tiesiai iš gatvės pusės. • Šildymas: dujinis, įrengtas grindinis šildymas. • Langai orientuoti į pietvakarius. • Išskirtinis Senamiesčio interjeras, jauki atmosfera. • Yra skliautinis rūsys. […]


Patalpų nuoma Klaipėda, Sandėlių g.
550 €

Patalpų nuoma Klaipėda, Sandėlių g.

Sandėlių g. nuomojamos 100 kv. m. tvarkingos patalpos Išnuomojamos šviesios ir jaukios 100 kv. m. komercinės patalpos su atskirta ofiso zona, virtuvėle ir WC. Patalpos yra 2 aukšte, daug natūralios šviesos, įrengtas centrinis šildymas su reguliuojamais radiatoriais, kondicionierius ir rekuperacinė sistema. Privalumai: Patogus privažiavimas Keltuvas ir rampa patogiam prekių užkrovimui Įrengta ofiso patalpa ir virtuvėlė […]


Patalpų nuoma Klaipėda, Birutės g.
1100 €

Patalpų nuoma Klaipėda, Birutės g.

Išnuomojamos komercinės patalpos Birutės g. Geroje vietoje, Birutės gatvėje, išnuomojamos 170 kv. m ploto kampinės patalpos su vitrininiais langais, esančios pirmame aukšte. Patalpose yra vanduo, WC, du sandėliukai. Galimybė keisti išplanavimą pagal poreikį. Du įėjimai: vienas tiesiai iš gatvės, kitas – iš saugaus kiemo pusės (aptverta teritorija, automatiniai vartai). Įrengta ventiliacija, kondicionierius, signalizacija. Centrinis grindinis […]


Patalpų nuoma Klaipėda, Birutės g.
300 €

Patalpų nuoma Klaipėda, Birutės g.

Klaipėdoje Birutės g. 2aukšte išnuomojamos 45kv.m. biuro patalpos. Patalpos tvarkingos jaukios ir šviesios,su baldais.Keturios darbo vietos. Šildymas centrinis kolektorinis. Ventiliacija, signalizacija. Bendrame kolidoriuje wc. Nemokamas parkingas Patogus privažiavimas Pastatas randasi patogioje lokacijoje Nuomos kaina 300€/mėn.+komunaliniai patarnavimai +GPM Kontaktinis asmuo: Sandra Tiniakova, Sandra.tikesgrupe@gmail.com, tel. +37060037133. Plotas (m²): 45 Aukštas: 2 Aukštų skaičius: 3 Statybos metai: 2010 […]